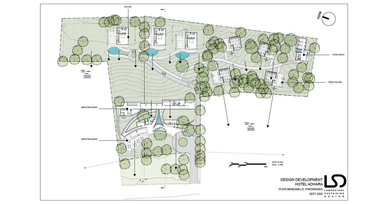
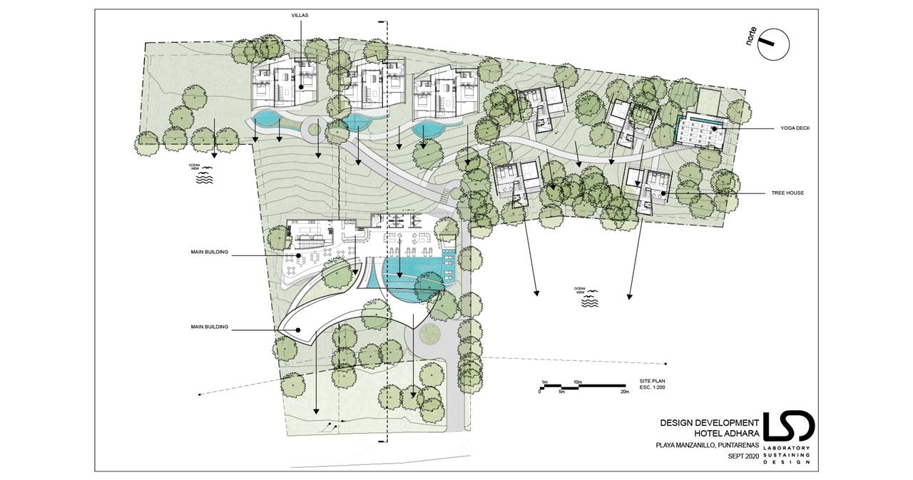
HOTEL ADHARA

LOCATED IN FRONT OF THE BEACH IN SANTA TERESA, COSTA RICA. THIS BOUTIQUE HOTEL PRESENTS 3 TYPES OF ACCOMMODATION AND LUXURY VILLAS, TREE HOUSES AND SUITS. THE GEOMETRY AND ARCHITECTURAL LANGUAGE OF THE HOTEL MIMIC THE CURVES OF THE MOUNTAINS AND NATURE, GENERATING A HARMONIOUS RELATIONSHIP WITH THE CONTEXT. THE MATERIALS AND COLORS RESEMBLE THE NATURAL TONES OF THE CONTEXT.

< TYPE > Boutique Hotel

< LOCATION > Santa Teresa

< YEAR > 2019

< STATUS > Design Stage

< LSD ARCHITECTS > Rodolfo Tinoco and Luis Mauricio Solis

< LSD TEAM > Adrian Guevara, Sheryl Arias